Grow-as-you-go Home
2024 SPRING
Instructor: Emma Silverblatt
Collaborator: Zekai Lin
Location: Trumansburg, NY.

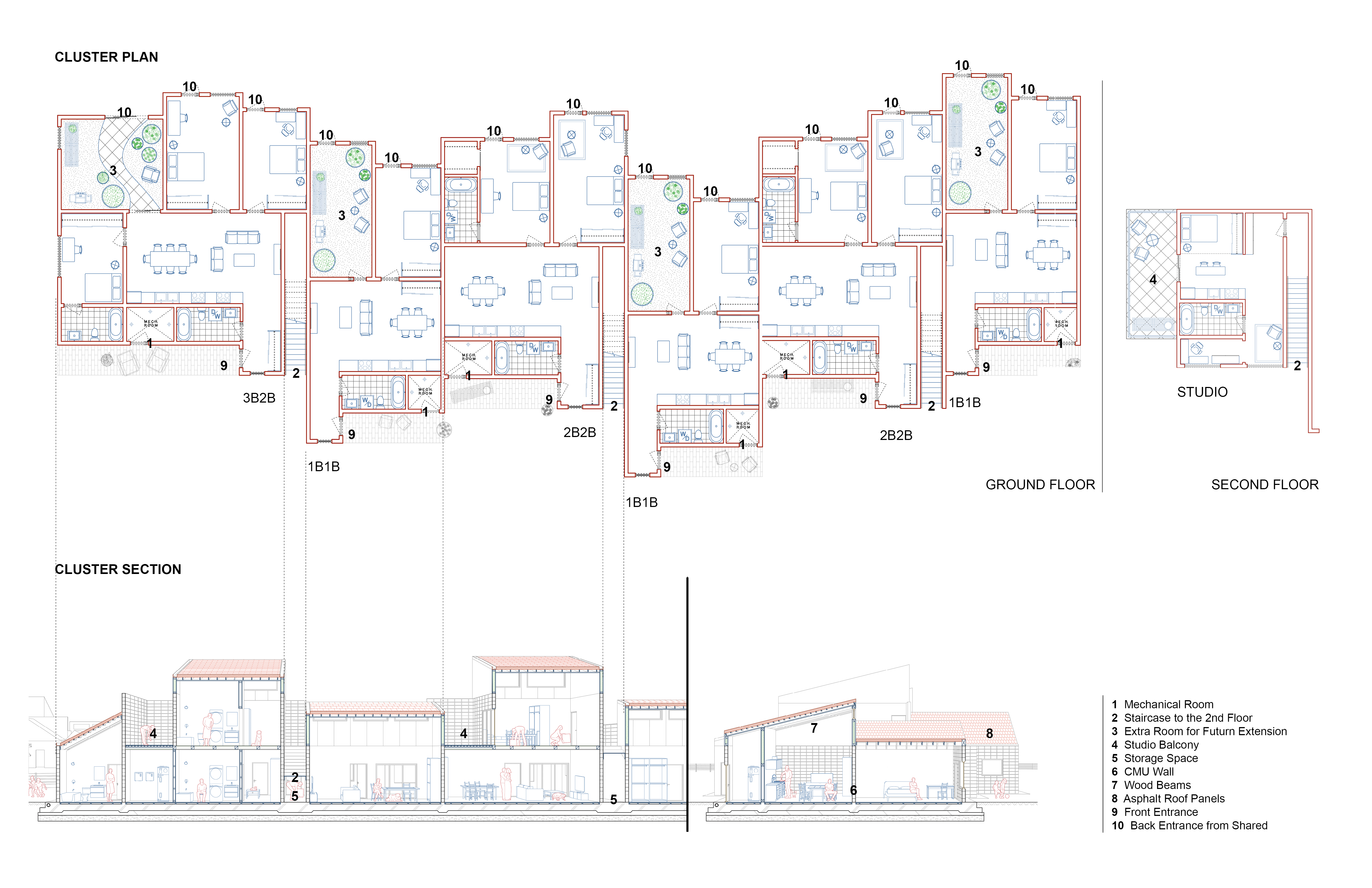
Located in Tompkins County, Trumansburg, New York, combines small-town charm with access to Ithaca's urban amenities, yet faces a housing crisis driven by shrinking household sizes and rising costs. Our goal is to create adaptable, affordable housing that aligns with these demographic shifts. Using CMU structural walls and modular wood-frame construction, the project begins with the core spaces—kitchen, bathroom, and mechanical room—alongside backyard walls that double as future expansion structures. Each cluster includes units sized from studios to three-bedroom homes, providing flexibility for single-person households and families alike. Occupants can expand their living spaces over time, using simple materials to minimize costs, and may choose to add ADUs for rental income. By partnering with nonprofits like INHS, we prioritize essential structures, allowing occupants to build additional living spaces as needed. The design also fosters community through connected walking trails and recreational areas, offering spaces for exercise, relaxation, and community engagement—an alternative to traditional indoor gyms that integrates with Trumansburg's natural landscape.

2 3 4 5 6 7 8 9 10 11